Skip to main content

Square Footage 1,925

First Floor 1,160

Second Floor 765

3 Bedrooms | 2 Baths 

About This Floor Plan

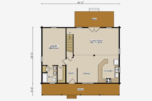
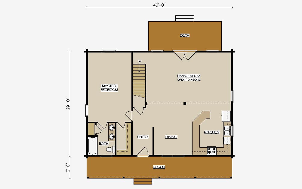
The Easton cabin is a classic two-story log home with 1,925 square feet of living space, split between 1,160 square feet on the main floor and 765 square feet on the second floor.

The main floor centers on shared living spaces designed for everyday use. The living room flows into the kitchen and dining areas, creating a connected feel that works for daily routines and gatherings alike. Bedrooms and a bathroom on the main floor sit apart from the high-traffic areas, giving you privacy without sacrificing convenience. Large windows and thoughtful placement of doors bring in natural light and connect the interior to outdoor spaces.

On the second floor, the Easton uses its 765 square feet to provide additional private space. The upstairs area can serve as a quiet retreat, guest suite, or flexible bonus area, adding depth to the layout without overwhelming the overall footprint.

This plan’s two-level design makes it a strong fit for lots where you want to maximize square footage while keeping the build footprint compact, and it works well for full-time living, weekend retreats, or rental use. The split between main and upper levels gives the home a balanced feel, with open shared space downstairs and private zones above.

Like all Cozy Log Homes plans, the Easton cabin can be customized. You can adjust interior walls, bedroom placement, porch and deck features, log styles, and window and door selections to match your climate and lifestyle.

If you’re looking for a log home that offers generous square footage, separate living zones, and classic log character with everyday livability, the Easton cabin delivers a thoughtful and functional layout you can build anywhere.