Skip to main content

Square Footage 1,785

First Floor 1,232

Second Floor 553

3 Bedrooms | 2 Baths 

About This Floor Plan

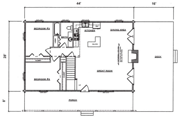
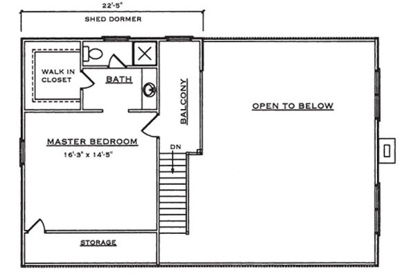
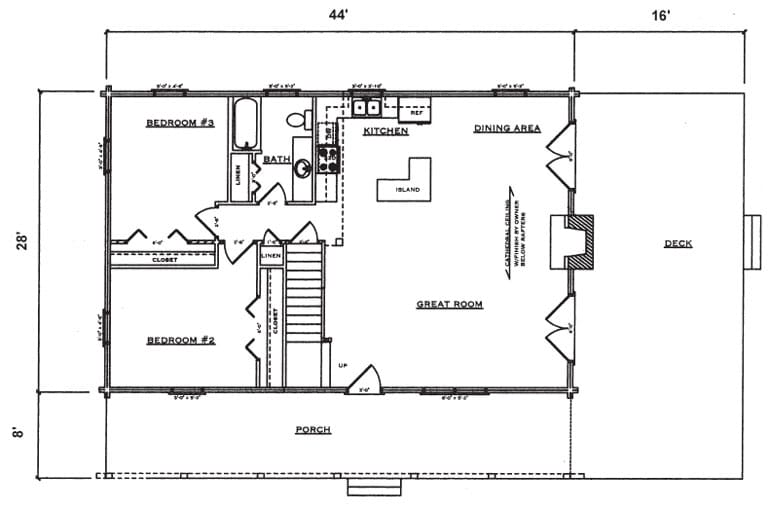
The Timberline is a two-story log home with 1,785 square feet of living space, made up of 1,232 square feet on the main floor and 553 square feet on the second level. With three bedrooms and two bathrooms, the layout balances shared living space with private areas without overextending the footprint.

The first floor is designed around daily living. The living room sits at the center of the plan and connects directly to the kitchen and dining area, creating a practical flow for everyday routines. This main level supports cooking, gathering, and relaxing in one connected space, while still allowing rooms to feel defined and easy to furnish. Bedroom and bathroom placement on the first floor adds flexibility for guests or long-term living without relying on stairs.

The second floor provides additional bedrooms and bathroom space, giving the Timberline clear separation between shared living areas below and quieter sleeping areas above. With a more compact upper level, the plan keeps the home efficient while still offering privacy where it matters. This layout works well for families, visiting guests, or homeowners who want dedicated sleeping space away from the main living area.

Because the Timberline builds upward rather than outward, it fits well on a wide range of build sites while still offering enough square footage for comfortable living. The design supports full-time use, a vacation home, or rental scenarios where defined living zones improve comfort and function.

Like all Cozy Log Homes designs, the Timberline can be customized to suit your build site and lifestyle. Interior layouts, porch configurations, log styles, and window and door selections can be adjusted based on climate, views, and how you plan to use the home.

If you’re looking for a log home that uses its square footage efficiently across two levels while keeping everyday living grounded on the main floor, the Timberline offers a practical and well-balanced design.